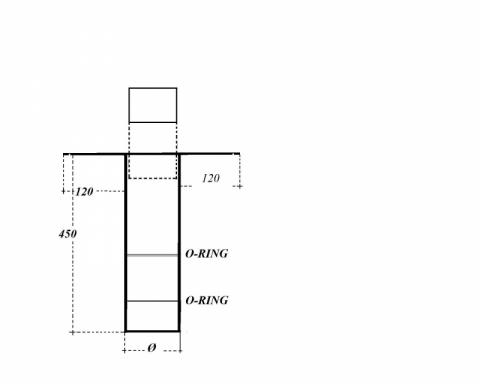
Alu-Alu senkrecht Gully mit Klemmring

  • Alu-Alu verticaal met klemring voor EPDM + O-ring
  • Alu buis 2 mm dik
  • Alu plaat 1 mm dik met 4 schroefgaten
  • Niet gelast (gepatenteerde productiemethode)
  • Op aanvraag: staalgecoate plaat (PVC/EPDM/TPO/PE)
Code Product Dimensions
680951V 65x450
680954V 75x450
680957V 95x450
680963V 116x450
680966V 130x450
680969V 150x450